MAIL
REAL ESTATE売買
LEASING賃貸
MANAGEMENT管理
REFORMリフォーム
COMPANY会社
INFORMATIONお知らせ
BLOGブログ
TOP > 物件 > 南東角地・通風・陽当り良好 豊中上野東

南東角地・通風・陽当り良好 豊中上野東

(間取) (外観) (外観) (外観)
価格
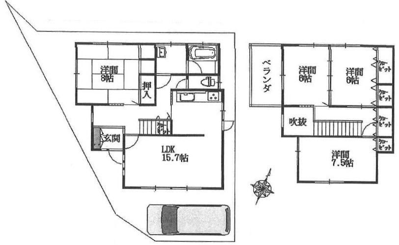
間取
4LDK
物件種別
中古戸建
所在地 大阪府豊中市上野東1丁目
交通 阪急宝塚本線豊中駅 徒歩18分
大阪モノレール少路駅 徒歩23分

コメント

南東角地・通風・日当たり良好!

上野小学校、第3中学校!

物件概要

築年月 1984/04 新築/中古 中古
面積 計測方式
バルコニー 向き
建物階数 地上2階  部屋階数
建物構造 木造
敷地全体面積 115.70m² 延べ床面積 105.66m²
間取内容 LDK15.7畳   和室8畳   洋室7.5畳   洋室6畳   洋室6畳   
駐車場 空有 取引態様 仲介
引渡/入居時期 相談 現況 空家
地目 宅地 用途地域
都市計画 市街化区域 地勢 平坦
土地面積 115.70m² 土地面積計測方式 公簿
土地権利 所有権 接道状況 角地
接道方向1 接道間口1
接道種別1 公道 接道幅員1 6.0m
接道方向2 接道間口2
接道種別2 公道 接道幅員2 4.7m
周辺環境 上野小学校 第3中学校
設備・条件
物件番号 B1180034
自社物 状態 成約
※物件掲載内容と現況に相違がある場合は現況を優先と致します。

お問い合わせフォーム

    お名前必須

    フリガナ必須

    メールアドレス必須

    電話番号

    希望引越し時期

    備考

    ご希望連絡手段

    メール電話どちらでも可

    PAGE TOP
    Copyright© 2017 BRIGHT ESTATE All Rights Reserved.
    Fudousan Plugin Ver.1.8.2