コメント
土地ゆったり52坪!
二世帯住宅としても、お使いいただけます!
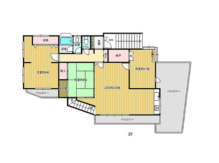
約23.5帖のゆったりLDK!
|
4LDK |
| 所在地 | 大阪府豊中市栗ヶ丘町 |
|---|---|
| 交通 | 阪急宝塚本線豊中駅 徒歩19分 阪急宝塚本線岡町駅 徒歩22分 |
土地ゆったり52坪!
二世帯住宅としても、お使いいただけます!
約23.5帖のゆったりLDK!
| 築年月 | 1986/10 | 新築/中古 | 中古 |
|---|---|---|---|
| 面積 | 計測方式 | ||
| バルコニー | 向き | ||
| 建物階数 | 地上2階 | 部屋階数 | |
| 建物構造 | 木造 | ||
| 敷地全体面積 | 172.31m² | 延べ床面積 | 139.92m² |
| 間取内容 |
LDK23.5畳 洋室9畳 洋室6.7畳 和室6畳 その他 +DK+フリースペース |
||
| 駐車場 | 空有 ガレージ12.33坪、2台可、作業場として可、物置あり | 取引態様 | 仲介 |
| 引渡/入居時期 | 相談 | 現況 | 居住中 |
| 地目 | 宅地 | 用途地域 | 第一種中高層住居専用 |
| 都市計画 | 市街化区域 | 地勢 | |
| 土地面積 | 172.31m² | 土地面積計測方式 | |
| 土地権利 | 所有権 | 接道状況 | |
| 周辺環境 | |||
| 設備・条件 | システムキッチン 床下収納 二世帯住宅 | ||
| 物件番号 | B21180030 | ||
| 自社物 | 状態 | 成約 | |