MAIL
REAL ESTATE売買
LEASING賃貸
MANAGEMENT管理
REFORMリフォーム
COMPANY会社
INFORMATIONお知らせ
BLOGブログ
TOP > 物件 > 豊中市大島町1丁目 中古テラスハウス!

豊中市大島町1丁目 中古テラスハウス!

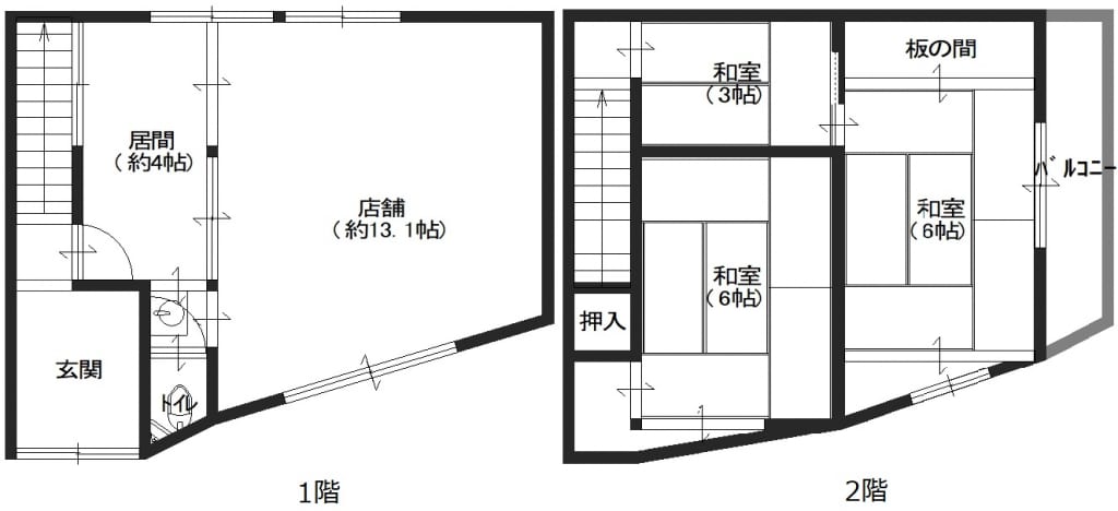
(間取) (外観) (内装)
価格
間取
4K
物件種別
中古テラス
所在地 大阪府豊中市大島町1丁目
交通 阪急神戸本線神崎川駅 徒歩13分
阪急宝塚本線三国駅 徒歩30分

コメント

豊中市大島町1丁目 中古テラスハウス(連棟式)

☆阪急神戸線「神崎川」駅徒歩13分

☆阪急宝塚線「三国」駅徒歩30分

☆ペット相談可能

 

 

物件概要

築年月 1977/11 新築/中古 中古
面積 計測方式
バルコニー 向き
建物階数 地上2階  部屋階数
建物構造 木造
敷地全体面積 延べ床面積 66.26m²
間取内容 和室6畳   和室6畳   和室3畳   洋室4畳   K13.1畳   
駐車場 取引態様 仲介
引渡/入居時期 即時 現況 空家
地目 宅地 用途地域 準工業
都市計画 市街化区域 地勢 平坦
土地面積 45.7m² 土地面積計測方式
土地権利 所有権 接道状況 一方
接道方向1 西 接道間口1 8.6m
接道種別1 公道 接道幅員1 7.2m
国土法届出 不要
周辺環境
設備・条件
物件番号 B1180174
自社物 状態 成約
※物件掲載内容と現況に相違がある場合は現況を優先と致します。

お問い合わせフォーム

    お名前必須

    フリガナ必須

    メールアドレス必須

    電話番号

    希望引越し時期

    備考

    ご希望連絡手段

    メール電話どちらでも可

    PAGE TOP
    Copyright© 2017 BRIGHT ESTATE All Rights Reserved.
    Fudousan Plugin Ver.1.8.2